REIMA

Tiltakshavar : Samarbeidsprosjekt mellom REIMA AS og Årdal kommune

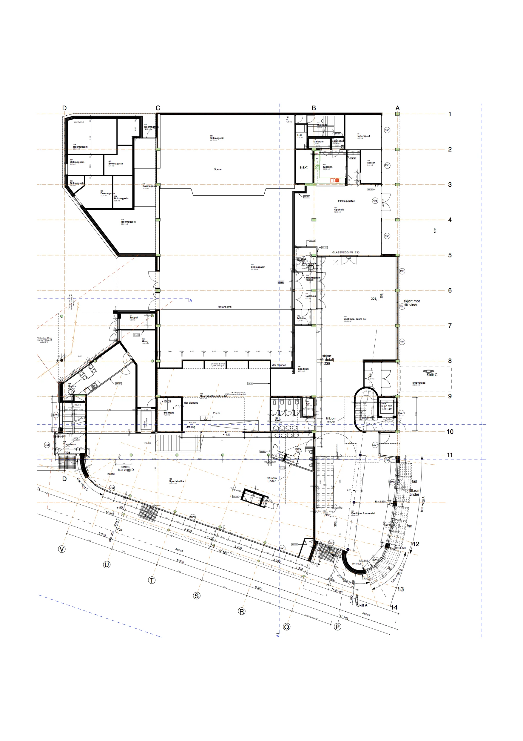
Adresse : Øvre Årdal

Type bygg : Butikksenter og kulturhus

Areal : 1.450 m2 nybygg og 1.150 m2 ombygging

Status : Ferdigstilt 2009

Samfunnshuset vart teikna av arkitekt Henning Zernichow og bygd tidleg på 1960-talet.  Bygget var karakterisert av ei stor, rettkanta kasseform svevande med delvis overheng over ein mørk, jordfarga sokkel.  Huset framstod monumentalt utan forsøk på tilpassing.              Tilbygget vårt tok utgangspunkt i ein komposisjon med kommunikativ tilpassing samstundes som det har høg eigenverdi i form av eit tidsmessig arkitektoniske uttrykk.  Tilbygget komplementerte Samfunnshuset med mjuke former og reduserte det dominerande og brutale uttrykket.  Tilbygget innheld 5 butikkar og ein kafé og i kulturhuset er vestibylen og biblioteket fullstendig oppgradert.  Overgangen mellom tilbygget og eksisterande samfunnshus vart løyst med ei handlegate med glasstak.